Agence
Philosophie
Présentation de l’agence
L’équipe
Projets
Chalets de montagne
Copropriétés
Maisons et appartements
Projets divers
Contacts
Sallanches
Montreuil
Villa Marguerite
Luçon
Année
2015
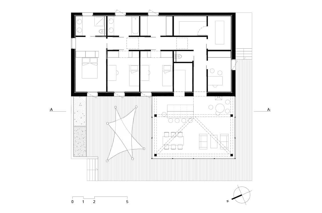
Programme
Construction d’une maison individuelle
Statut
Projet construit
Surface
130 m²
Maître d'ouvrage
Privé
Conception
RCDL architectes
Villa Marguerite
Luçon
Retour aux projets
Agence
Philosophie
Présentation de l’agence
L’équipe
Projets
Chalets de montagne
Copropriétés
Maisons et appartements
Projets divers
Contacts
Sallanches
Montreuil
Villa Marguerite
Luçon
Année
2015
Programme
Construction d’une maison individuelle
Statut
Projet construit
Surface
130 m²
Maître d'ouvrage
Privé
Conception
RCDL architectes