Agence
Philosophie
Présentation de l’agence
L’équipe
Projets
Chalets de montagne
Copropriétés
Maisons et appartements
Projets divers
Contacts
Sallanches
Montreuil
La grange du fayet
Samoëns
Année
2024
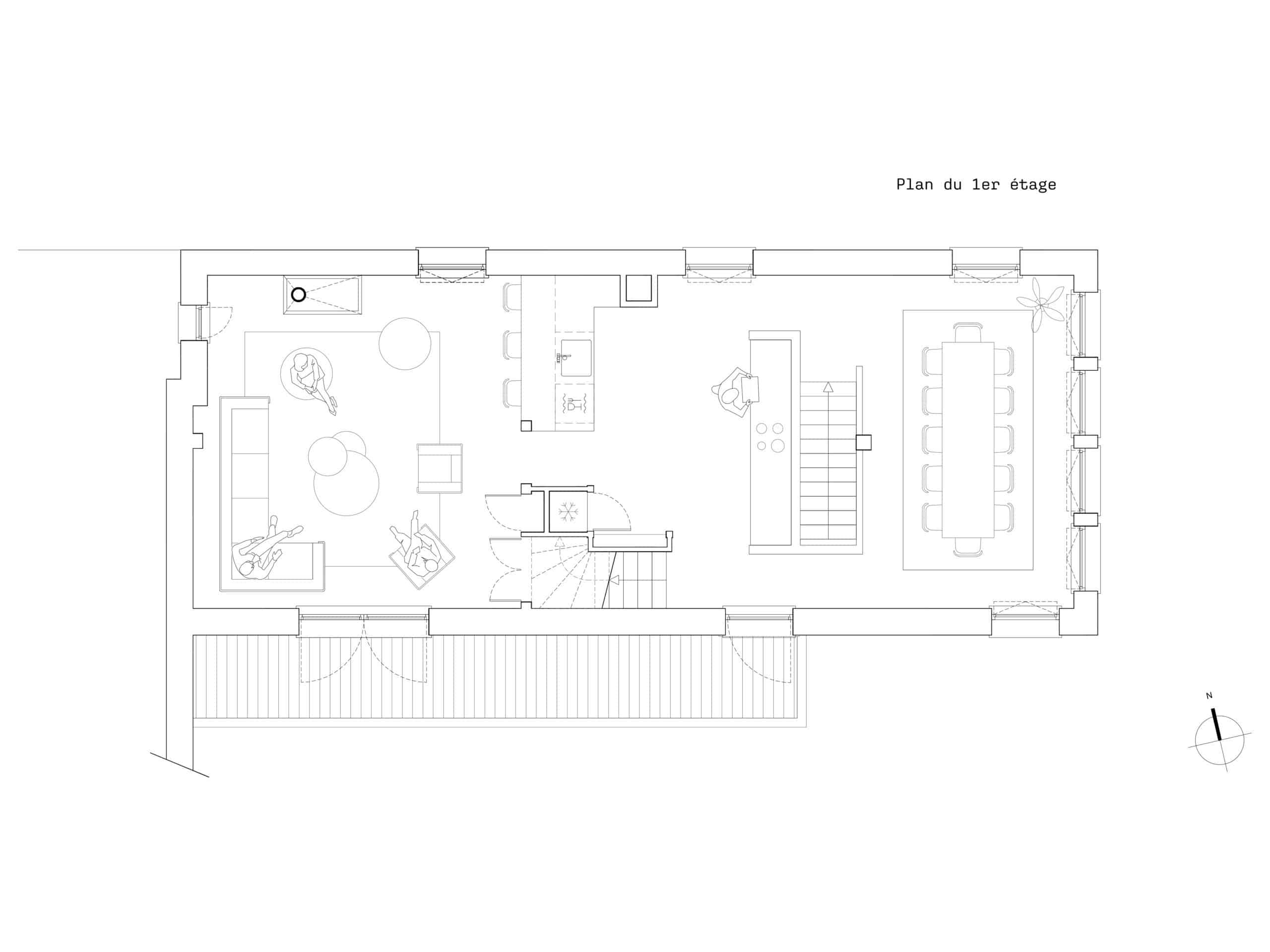
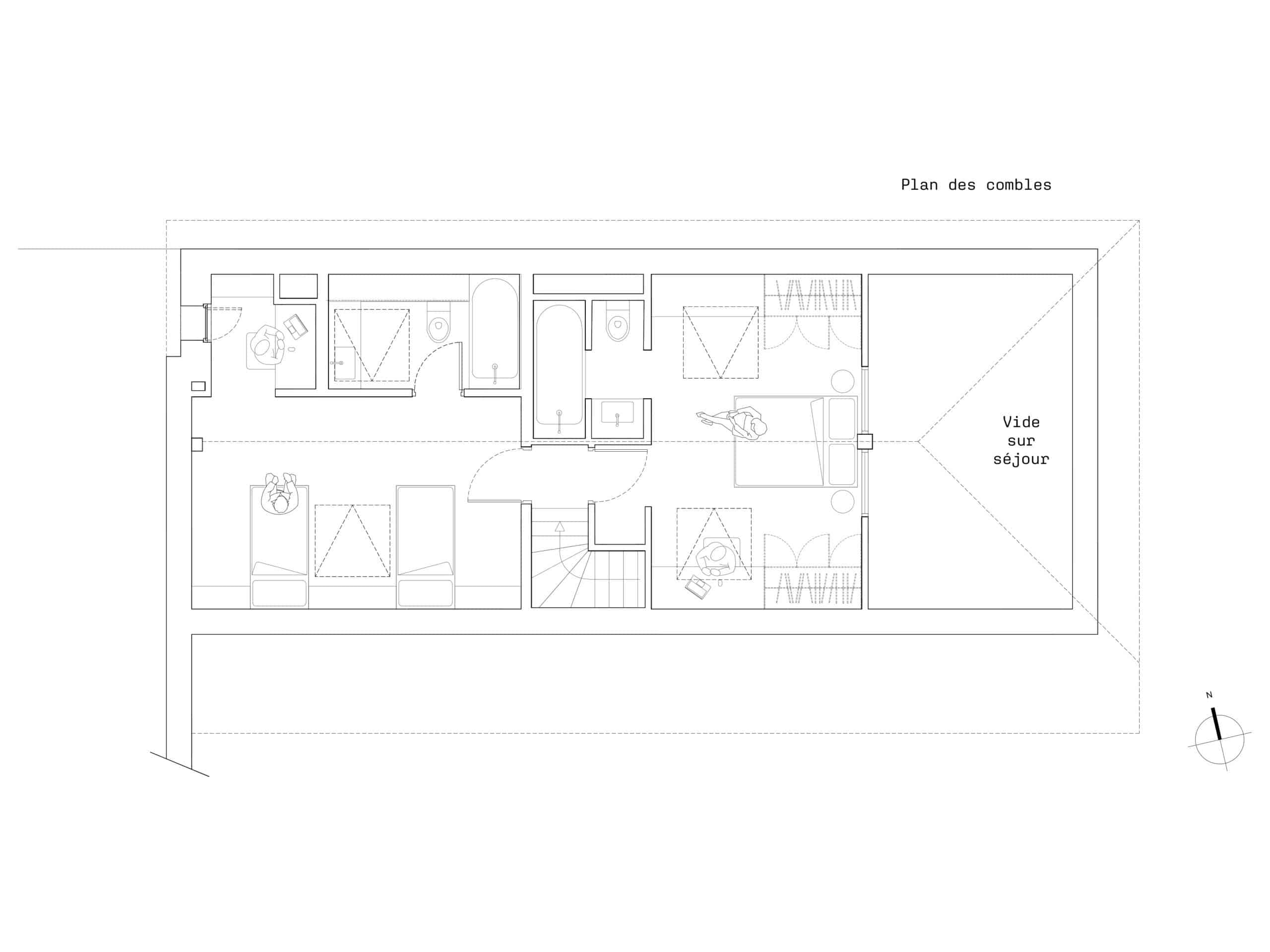
Programme
Rénovation d’une grange à Samoëns (Isolation, façades et distribution et aménagements intérieurs)
Statut
Projet construit
Budget
235 000 € HT
Maître d'ouvrage
Privé
Conception
RCDL architectes
La grange du fayet
Samoëns
Retour aux projets
Agence
Philosophie
Présentation de l’agence
L’équipe
Projets
Chalets de montagne
Copropriétés
Maisons et appartements
Projets divers
Contacts
Sallanches
Montreuil
La grange du fayet
Samoëns
Année
2024
Programme
Rénovation d’une grange à Samoëns (Isolation, façades et distribution et aménagements intérieurs)
Statut
Projet construit
Budget
235 000 € HT
Maître d'ouvrage
Privé
Conception
RCDL architectes