Agence

Projets

Contacts

Appartement Y

Nantes

Année

2022

Programme

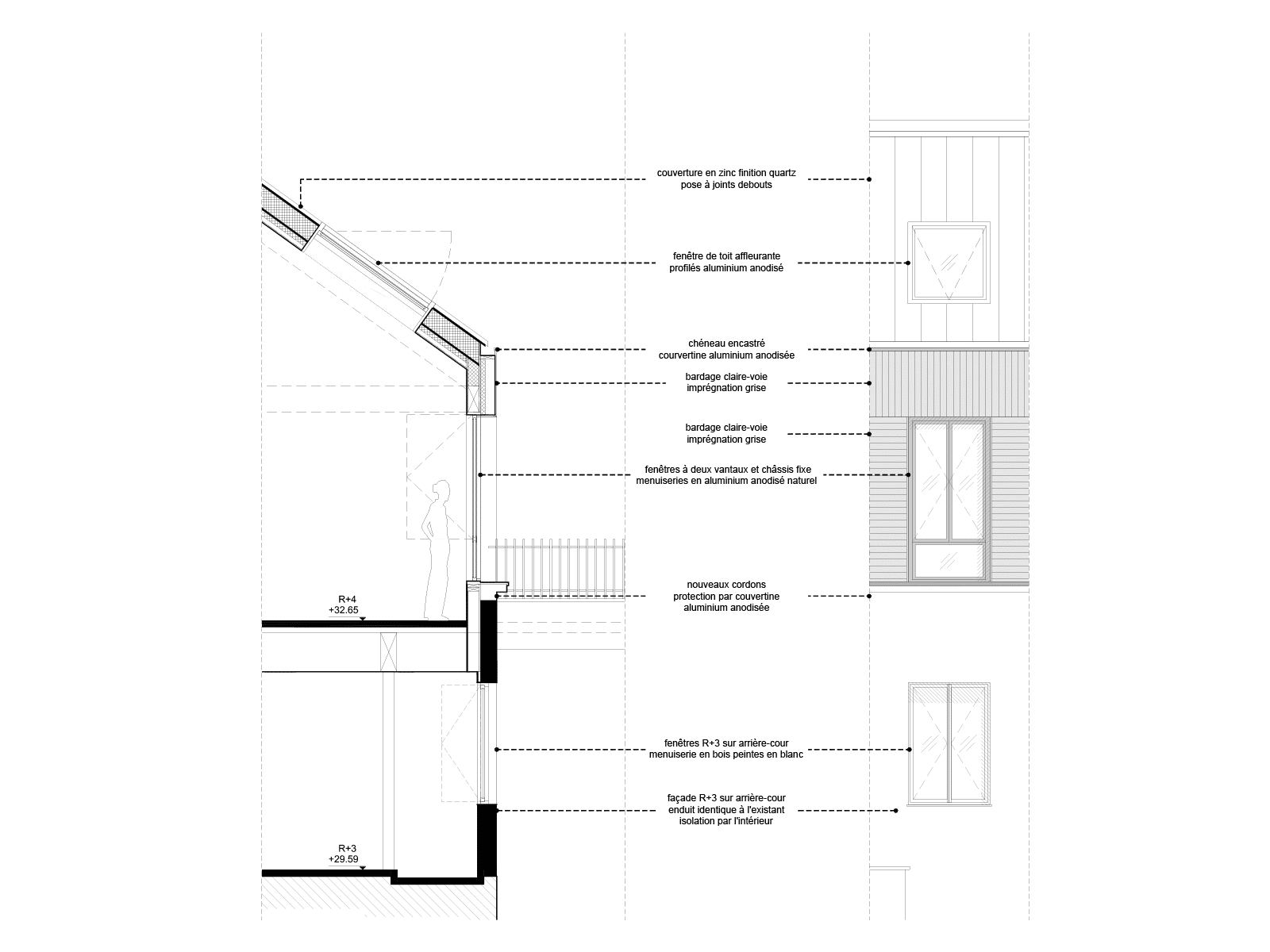
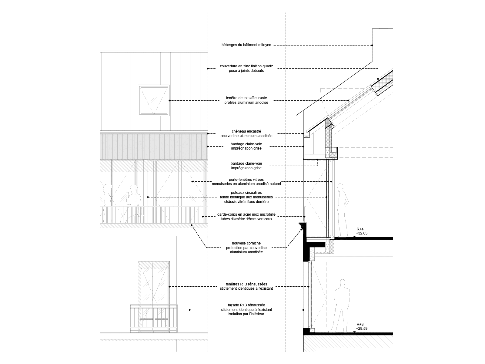
Rénovation et surélévation d’un immeuble

Statut

Projet construit

Surface

207

Maître d'ouvrage

Privé

Conception

RCDL architectes

Réalisation

EURL Thomas Pointière

économiste

Abak

Bureau d'étude structure

Abak

Bureau d'étude fluide

NRGYS

Agence

Projets

Contacts

Appartement Y

Nantes

Année

2022

Programme

Rénovation et surélévation d’un immeuble

Statut

Projet construit

Surface

207

Maître d'ouvrage

Privé

Conception

RCDL architectes

Réalisation

EURL Thomas Pointière

économiste

Abak

Bureau d'étude structure

Abak

Bureau d'étude fluide

NRGYS