Agence
Philosophie
Présentation de l’agence
L’équipe
Projets
Chalets de montagne
Copropriétés
Maisons et appartements
Projets divers
Contacts
Sallanches
Montreuil
Centre equestre equitation en altitude
Bonneville
Année
2016
Programme
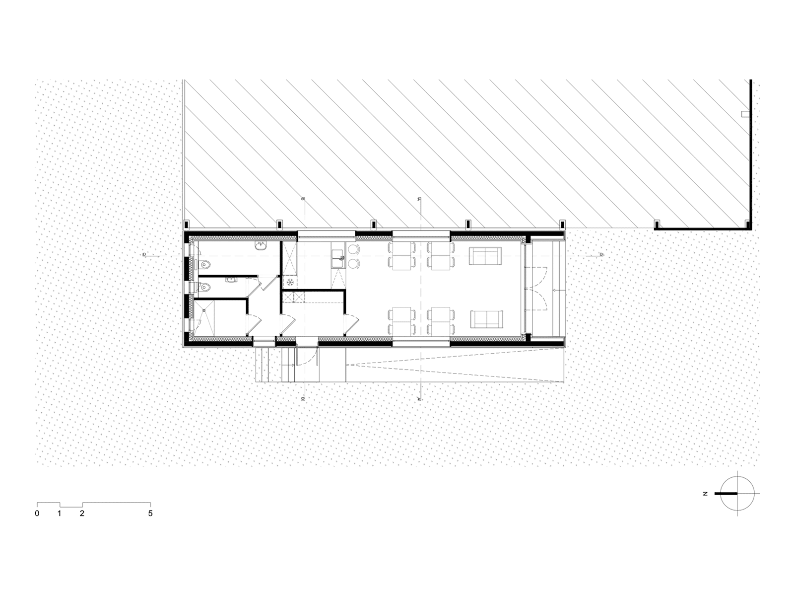
Extension d’un centre équestre
Statut
Projet abandonné
Surface
69
Maître d'ouvrage
Privé
Conception
RCDL architecte
Réalisation
Équitation en altitude
Centre equestre equitation en altitude
Bonneville
Retour aux projets
Agence
Philosophie
Présentation de l’agence
L’équipe
Projets
Chalets de montagne
Copropriétés
Maisons et appartements
Projets divers
Contacts
Sallanches
Montreuil
Centre equestre equitation en altitude
Bonneville
Année
2016
Programme
Extension d’un centre équestre
Statut
Projet abandonné
Surface
69
Maître d'ouvrage
Privé
Conception
RCDL architecte
Réalisation
Équitation en altitude