Le Beausite

Megève

Année

2025-2026

Programme

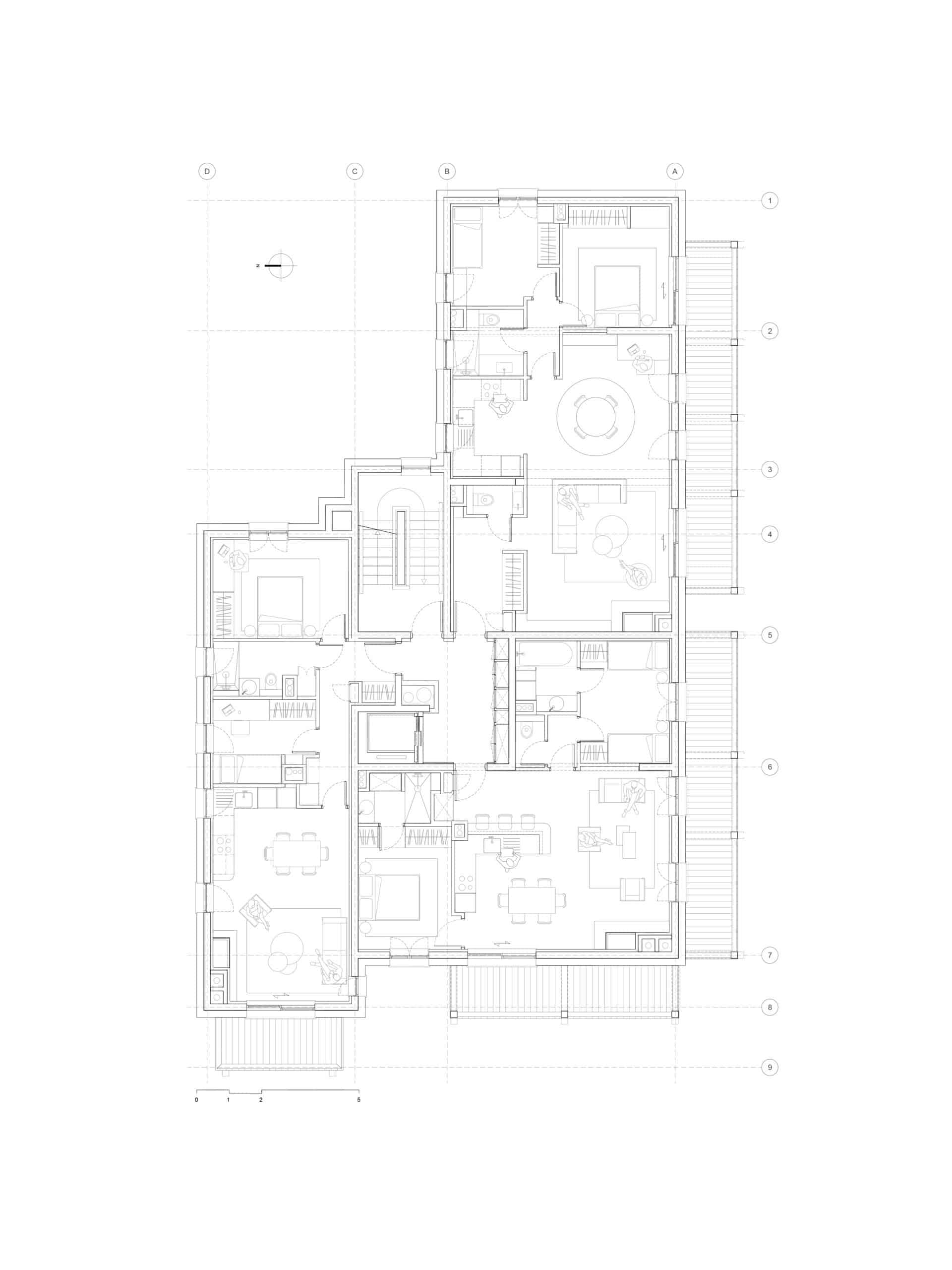
Reconstruction d’un immeuble d’habitation après sinistre

Statut

Projet en chantier

Surface

1 467 m²

Budget

5,16 M € HT

Maître d'ouvrage

Copropriété le Beausite

Conception

RCDL architectes

économiste

Projtech’réalisation

Bureau d'étude thermique

Double CENS

Bureau d'étude structure

GP Structure

Bureau d'étude fluide

Double CENS

Agence

Projets

Contacts

Le Beausite

Megève

Année

2025-2026

Programme

Reconstruction d’un immeuble d’habitation après sinistre

Statut

Projet en chantier

Surface

1 467 m²

Budget

5,16 M € HT

Maître d'ouvrage

Copropriété le Beausite

Conception

RCDL architectes

économiste

Projtech’réalisation

Bureau d'étude thermique

Double CENS

Bureau d'étude structure

GP Structure

Bureau d'étude fluide

Double CENS