Agence
Philosophie
Présentation de l’agence
L’équipe
Projets
Chalets de montagne
Copropriétés
Maisons et appartements
Projets divers
Contacts
Sallanches
Montreuil
Le cabanon du Pelloux
Combloux
Année
2025
Programme
Conception d’un chalet
Statut
Projet en cours
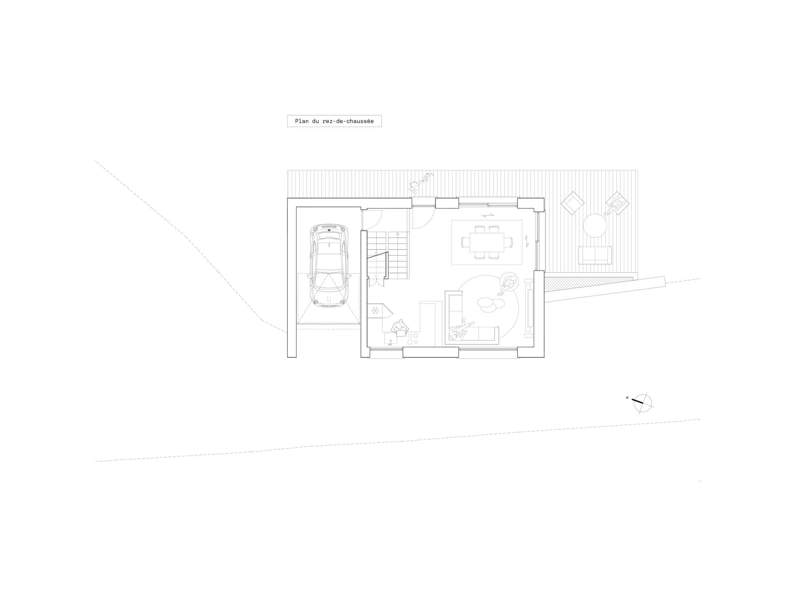
Surface
78 m²
Budget
150 000€ HT
Maître d'ouvrage
Privée
Conception
RCDL architectes
Le cabanon du Pelloux
Combloux
Retour aux projets
Agence
Philosophie
Présentation de l’agence
L’équipe
Projets
Chalets de montagne
Copropriétés
Maisons et appartements
Projets divers
Contacts
Sallanches
Montreuil
Le cabanon du Pelloux
Combloux
Année
2025
Programme
Conception d’un chalet
Statut
Projet en cours
Surface
78 m²
Budget
150 000€ HT
Maître d'ouvrage
Privée
Conception
RCDL architectes