Agence
Philosophie
Présentation de l’agence
L’équipe
Projets
Chalets de montagne
Copropriétés
Maisons et appartements
Projets divers
Contacts
Sallanches
Montreuil
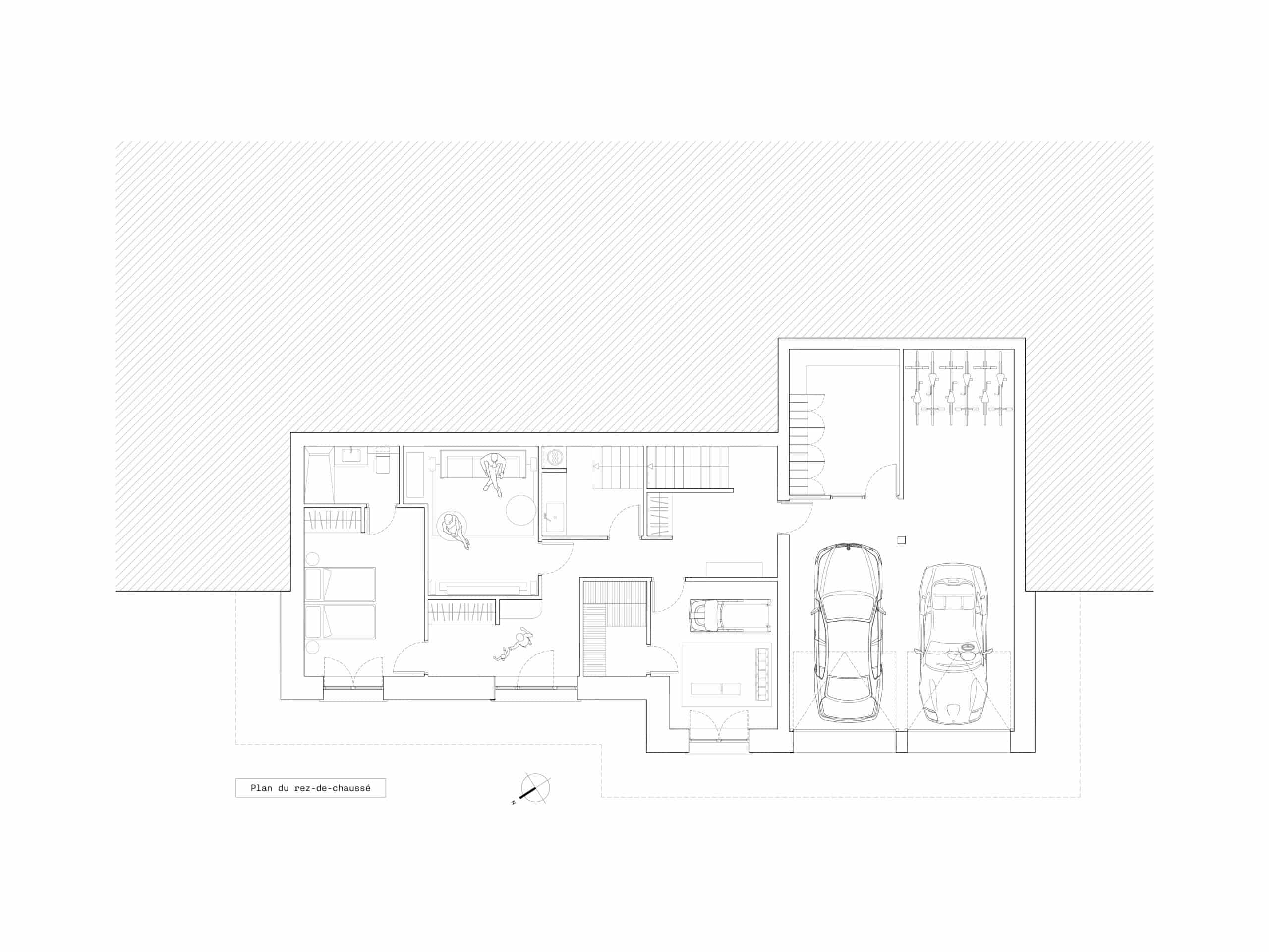
Chalet de la Frasse
Morzine
Année
2025
Programme
Construction de 2 chalets
Statut
Projet en cours
Surface
320 m²
Budget
1,28 million € HT
Maître d'ouvrage
Privée
Conception
RCDL architectes
Chalet de la Frasse
Morzine
Retour aux projets
Agence
Philosophie
Présentation de l’agence
L’équipe
Projets
Chalets de montagne
Copropriétés
Maisons et appartements
Projets divers
Contacts
Sallanches
Montreuil
Chalet de la Frasse
Morzine
Année
2025
Programme
Construction de 2 chalets
Statut
Projet en cours
Surface
320 m²
Budget
1,28 million € HT
Maître d'ouvrage
Privée
Conception
RCDL architectes