Agence
Philosophie
Présentation de l’agence
L’équipe
Projets
Chalets de montagne
Copropriétés
Maisons et appartements
Projets divers
Contacts
Sallanches
Montreuil
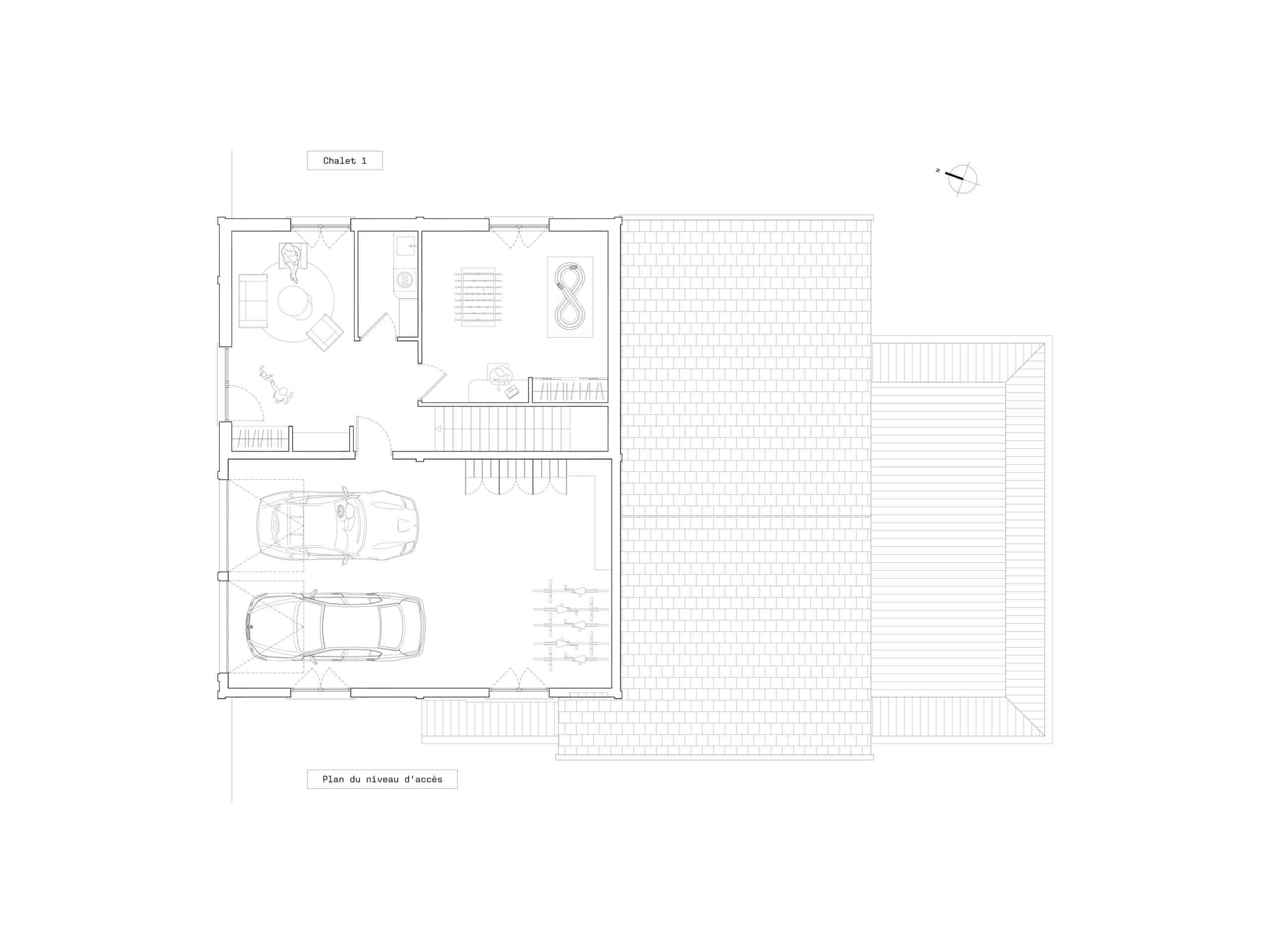
Chalets des Planches
Les Gets
Année
2025
Programme
Construction de 2 chalets
Statut
Projet en cours
Surface
582,5 m²
Budget
2,33 M € HT
Maître d'ouvrage
Altitudia
Conception
RCDL architectes
Chalets des Planches
Les Gets
Retour aux projets
Agence
Philosophie
Présentation de l’agence
L’équipe
Projets
Chalets de montagne
Copropriétés
Maisons et appartements
Projets divers
Contacts
Sallanches
Montreuil
Chalets des Planches
Les Gets
Année
2025
Programme
Construction de 2 chalets
Statut
Projet en cours
Surface
582,5 m²
Budget
2,33 M € HT
Maître d'ouvrage
Altitudia
Conception
RCDL architectes